b a y o n a     a r q u i t e c t o s

 Inicio

 

BAYONA ARQUITECTOS

Avenida Montegancedo, 1
Pozuelo de Alarcón
28223 MADRID

tf: 91 351 75 72
fax: 91 351 74 55
movil 617 335 825

ignacio@bayona.es


 

VIVIENDA UNIFAMILIAR

EN VILLAR DEL OLMO

LICENCIA - ( 20-sept-2010 )

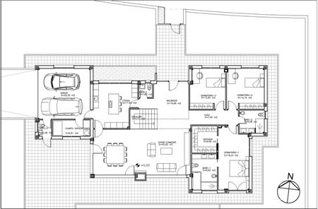
Hemos entregado al Ayuntamiento, por encargo del cliente , para obtener la licencia de obras, el proyecto de una vivienda unifamiliar en la urbanizacion Eurovillas en la localidad de Villar del Olmo. Se trata de una vivienda en una planta y una pequeña entreplanta destinada a biblioteca. Toda la vivienda se ha diseñado con espacios de grandes techos altos y cubiertas inclinadas.

PLANTA

MAQUETA - ( 18-oct-2010 )

MAQUETA

Hemos realizado la maqueta de la vivienda unifamiliar para que el cliente tenga una idea lo mas realista posible de su futura vivienda . la maqueta se le entrega al cliente sin coste adicional y dentro de los honorarios del proyecto.

MAQUETA

COMIENZO DE OBRA - ( 29-oct-2010 )

Se han comenzado las obras de la vivienda , con el replanteo sobre la parcela y se esta realizando la nivelación de la huella de la vivienda , antes de la excavación de la cimentación.

VISITA DE OBRA - ( 4-nov-2010 )

Se esta realizando la excavación de la piscina y la explanación de la huella de la vivienda para el replanteo de la cimentación , ya que la vivienda no tiene sotano. El terreno que aparece es roca caliza de gran dureza.

VISITA DE OBRA - ( 11-nov-2010 )

Se ha realizado el replanteo de la cimentación .

VISITA DE OBRA- ( 16-nov-2010 )

Se ha comenzado la cimentación de la vivienda y el encofrado de las zapatas

VISITA DE OBRA - ( 2-dic-2010 )

Se estan levantando los pilares de los diferentes forjados de cubierta,

VISITA DE OBRA - ( 3-enero-2011 )

Se esta hormigonando el primer forjado y preparando los pilares de la planta primera y cubierta. Se ha colocado el cartel de obra del estudio.

VISITA DE OBRA - (13-enero-2011)

Se estan encofrando los forjados inclinados de la cubierta, utilizando un doble nivel de encofrado ya que la altura supera los 5 m.

VISITA DE OBRA - ( 4-marzo-2011 )

Aunque estamos en marzo , la obra ha amanecido hoy con 10 centimetros de nieve , ya se ha terminado la estructura y se esta comenzando a realizar la primera hoja del cierre de facjada, con el replanteo de los huecos de fachada.

VISITA DE OBRA - (11-marzo-2011)

Se ha comenzado el replanteo de la fachada y el levantamiento de la hoja exterior , con ladrillo tosco , como base al aislamiento de poliuretano proyectado y al mortero monocapa exterior.

VISITA DE OBRA - (24-marzo-2011)

Se esta terminando la hoja exterior de las fachadas y se ha enfoscado interiormente con mortero hidrofugo, preparado para recibir el aislante de poliuretano proyectado , antes de comenzar la distribución interior.

VISITA DE OBRA - ( 14-abril-2011 )

Se esta terminando la albañileria interior de las distribuciones para ir colocando la cubierta y las instalaciones.

VISITA DE OBRA - ( 28-abril-2011 )

Se ha terminando la albañileria interior y se ha comenzado ha realizar la cubierta y las instalciones interiores.

VISITA DE OBRA - ( 26-mayo-2011 )

Se ha terminando la cubierta de la vivienda y las distribuciones interiores, comenzandose las instalaciones de fontaneria y de electricidad.

VISITA DE OBRA - ( 6-Octubre-2011 )

Se ha terminando el cierre de la carpinteria exterior y comenzado con las obras de urbanización y de los cierres perimetrales de la parcela.

VISITA DE OBRA - ( 15-Marzo-2012 )

La vivienda esta bastante avanzada, aunque todavia quedan bastante acabados , interiores sin acabar y se esta avanzando en las obras de urbanización.

.